Monos Flagship Vancouver
Location / Vancouver
Project Type / Interior Design
Size / 1,950 sf
Completed / 2024
Photography / Conrad Brown
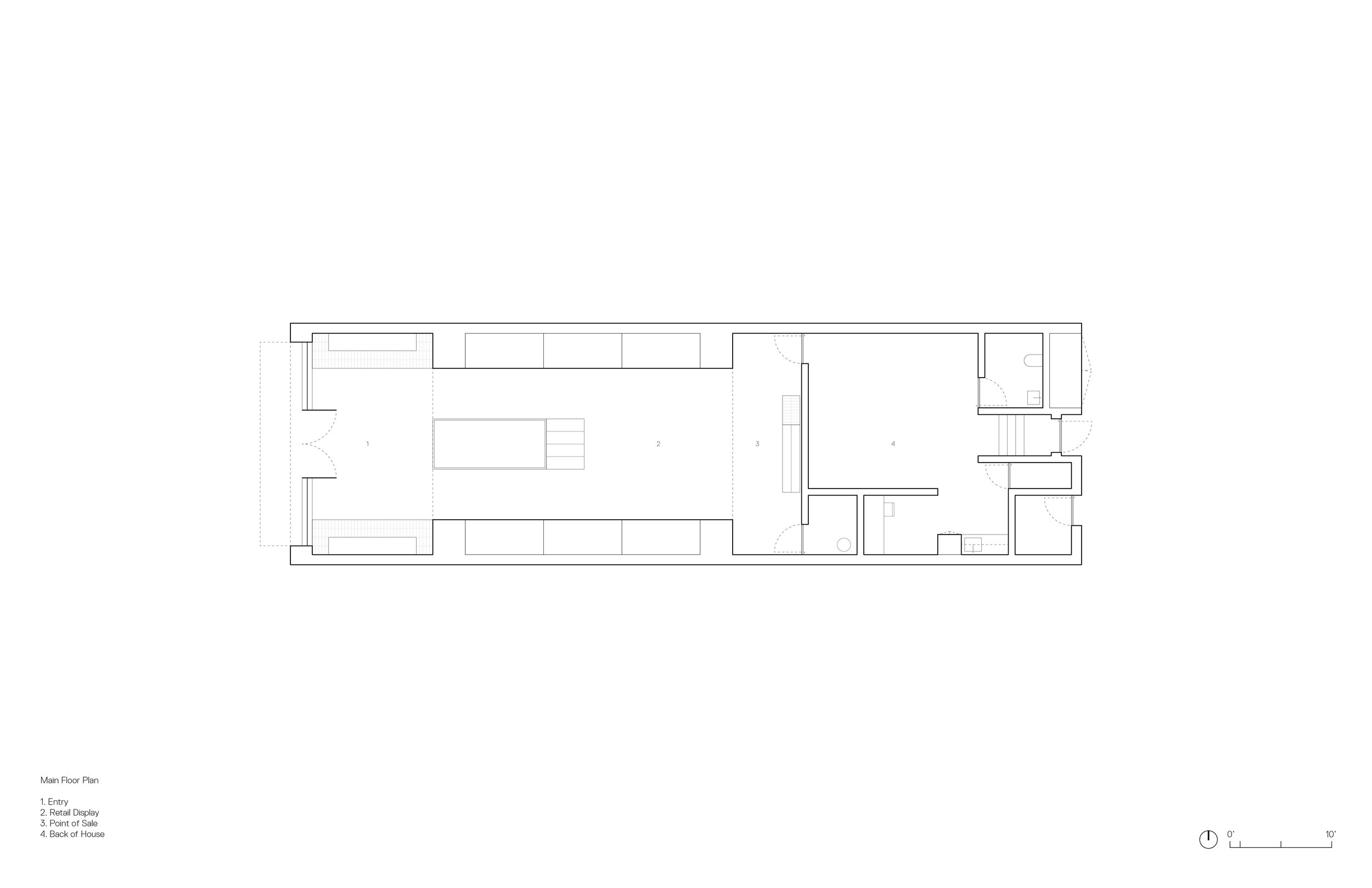
For its first brick-and-mortar flagship location, the Vancouver-based online luggage retailer Monos looked to Leckie Studio to develop a unique and engaging retail experience that sets the boutique apart from traditional stores and enhance the brand awareness. Situated in the relaxed beachside neighbourhood of Kitsilano, Monos Vancouver flagship store embodies the ethos of the young and ambitious company; the value of immersing oneself in the moment and recognizing the beauty of fleeting moments in travel.
Once drawn into the space by the high vaulted ceiling, visitors are invited to engage in a series of thoughtfully curated multi-sensory experiences, following light, texture, and curiosity. Designed to evoke the memory of travelling, these transportive moments guide the visitors through a custom display system toward an undulating brick wall towering at the end of the journey. The monochromatic material palette consisting of brick and plaster is reminiscent of travelling through distant landscapes, while providing a minimal and versatile backdrop for showcasing the products.
Awards
2025 / AFBC Design Excellence Award / Interiors
2025 / Canadian Interiors / Retail / Best of Canada